Marian Floricu
pe site din 24 Sep
activ: 10 Feb 2026 21:14









638.000 eur
Companie
Descriere anunt
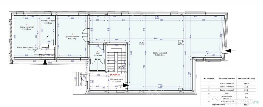
Va propunem spre vanzare un spatiu comercial aflat la parterul unui imobil cu regim de inaltime P 2E, situata in imediata apropiere a centrului comercial Shopping City Sibiu, intr-o zona cu trafic intens si vizibilitate excelenta. Imobilul beneficiaza de o amplasare strategica, fiind ideal pentru activitati comerciale, birouri, clinici sau investitie cu randament bun.
Spatiul are o suprafata utila de 263 mp si o suprafata construita totala de 315 mp, fiind construita pe o structura solida in cadre de beton armat, cu inchideri din caramida si izolatie din vata bazaltica. Tamplaria este din aluminiu, iar fatada este finisata cu caramida decorativa de exterior, oferind un aspect elegant si distinct.
Interiorul este la stadiu de gri si nu este compartimentat, oferind astfel flexibilitate totala pentru configurarea ulterioara in functie de activitatea desfasurata sau de cerintele viitorului proprietar.
Acesta beneficiaza de urmatoarele avantaje:
- 6 locuri de parcare amenajate in curtea proprie
- curte interioara complet pavata si organizata
- infrastructura completa pentru utilitati (electricitate, gaz, apa, canalizare, internet)
- expunere excelenta la o artera intens circulata
- arhitectura moderna si fatada reprezentativa
Spatiul reprezinta o oportunitate excelenta pentru investitori sau companii care doresc un spatiu multifunctional, bine pozitionata, cu potential de extindere si adaptare in functie de nevoi.
Valoarea de achizitie este de 638.000 euro TVA. ID intern: 3063.
Suprafaţă totală: 315 m²
An finalizare construcție: 2024
Vitrină: 10 m
Stadiu construcţie: Finalizat
Înălţime spaţiu: 3 m
Număr încăperi: 6
Număr Grupuri Sanitare: 2
Posibilitate parcare: Da
Nr. locuri parcare: 5-10
Tip imobil: Centru comercial
Specificații
Suprafață utilă (m²)263
ID: 16669622
Contactează vânzătorul
Companie
Marian Floricu
pe site din 24 Sepactiv:
Nu există recenzii
Mai multe anunțuri ale utilizatorului
Sibiu, Sibiu
Despre companie
Loading ad...
Contactează vânzătorul
Companie
Marian Floricu
pe site din 24 Sepactiv:
Nu există recenzii
Loading ad...
Vezi mai multe anunturi ale acestui vânzator
Toate anunturileAnunturi similare












































































































































































































































































































