BLITZ Romania
pe site din 4 Sep
activ: 10 Feb 2026 21:14






4.000 eur
Companie
Descriere anunt
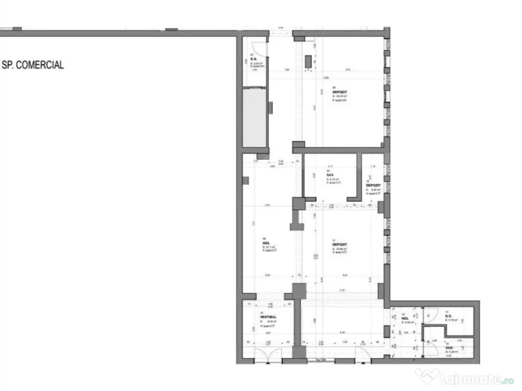
Blitz va ofera spre inchiriere un spatiu comercial situat la parterul unui ansamblu rezidential mixt.
Compartimentare mixta, in forma de L, usor de reconfigurat cu 2 iesiri, ce permite flux necesar pentru multiple activitati comerciale. Spatiu necesita finisare dupa profilul chiriasului, care se va fi executata de catre proprietar.
Pretabil pentru diverse servicii si activitati comerciale ce nu presupun un vad comercial deosebit. Dispune si de 4 spatii de parcari cu mutiple posibilitati de parcare temporara in zona.
Pentru mai multe detalii va stam la dispozitie!
Cod ofertă / ID BLITZ: P159182
Id intern: P159182
Stadiu construcţie: Finalizat
Nr. locuri parcare: 4
Tip imobil: Bloc de apartamente
Specificații
Suprafață utilă (m²)285
Stadiu construcţieFinalizat
ID: 16691895
Contactează vânzătorul
Companie
BLITZ Romania
pe site din 4 Sepactiv:
Nu există recenzii
Mai multe anunțuri ale utilizatorului
Cluj-Napoca, Cluj
Despre companie
Loading ad...
Contactează vânzătorul
Companie
BLITZ Romania
pe site din 4 Sepactiv:
Nu există recenzii
Loading ad...
Vezi mai multe anunturi ale acestui vânzator
Toate anunturileAnunturi similare


















































































































































































































































































































































































































