Catalin Popescu
pe site din 17 Nov
activ: 10 Feb 2026 21:14












Spatiu comercial Kogalniceanu stradal 50 mp fara risc sei...
120.000 eur
Companie
Bucuresti, IF
11.03.2026
Număr de telefon validat
Descriere anunt
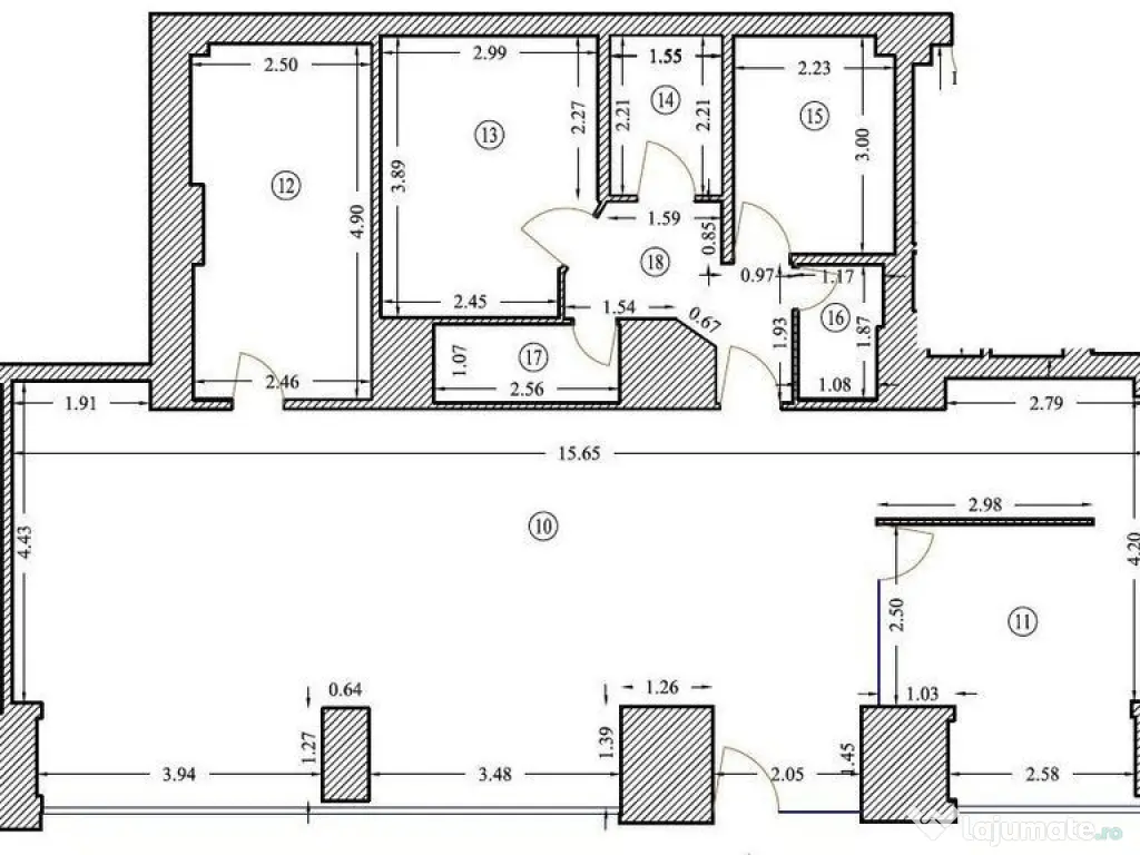
Spatiu comercial stradal in suprafata de 26 m2 cu pivnita sub spatiu. Spatiul este inregistrat ca si spatiu comercial. In continuarea spatiului se afla un apartament de doua camere .
Suprafaţă totală: 52 m²
An finalizare construcție: 1923
Vitrină: 3.0 m
Stadiu construcţie: Finalizat
Înălţime spaţiu: 3.0 m
Număr încăperi: 2
Număr Grupuri Sanitare: 1
Posibilitate parcare: Nu
Tip imobil: Spaţiu stradal
Specificații
Suprafață utilă (m²)50
ID: 16769745
Contactează vânzătorul
Companie
Catalin Popescu
pe site din 17 Novactiv:
Nu există recenzii
Mai multe anunțuri ale utilizatorului
Bucuresti, Bucuresti-Ilfov
Despre companie
Loading ad...
Contactează vânzătorul
Companie
Catalin Popescu
pe site din 17 Novactiv:
Nu există recenzii
Loading ad...
Vezi mai multe anunturi ale acestui vânzator
Toate anunturileAnunturi similare



















































































































































































































































































































