BLITZ Romania
pe site din 4 Sep
activ: 10 Feb 2026 21:14

450.000 eur
Companie
Descriere anunt
BLITZ vă propune spre vânzare spațiu comercial modern, cu preluare de afacere existentă — business stabil și profitabil. Proprietatea reprezintă o oportunitate excelentă pentru investitori care caută randament imediat sau pentru antreprenori din domeniul beauty & grooming.
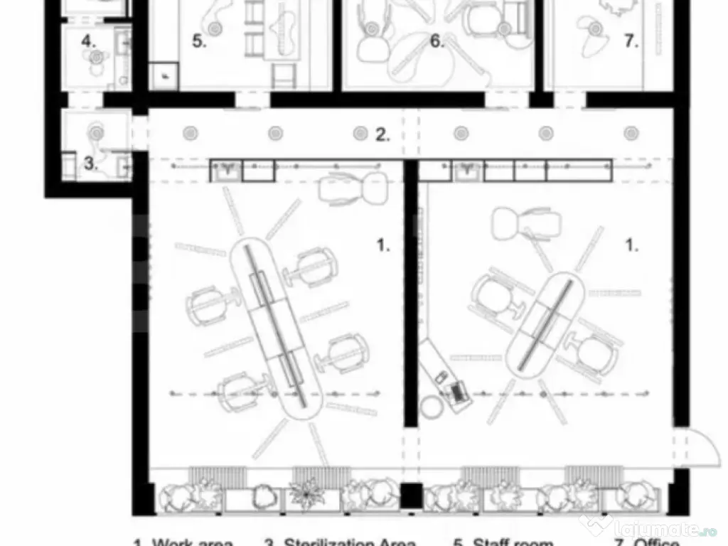
Detalii spațiu
Suprafață utilă: 105 mp
Compartimentare: 5 încăperi + baie
Înălțime generoasă: 3,8 m
Vitrină stradală: 10 m lățime × 3,5 m înălțime — vizibilitate excelentă
Renovat integral în 2024, design realizat împreună cu arhitecți
Instalații complet noi
Dotări premium: sistem alarmă, supraveghere video, sistem audio profesional BOSE
21 locuri de parcare în clădire (din care 2 dedicate spațiului)
Despre business – Barbershop:
Afacere funcțională din 2014
7 posturi de lucru, cu posibilitate reală de extindere
Clientelă fidelă și reputație solidă pe piață
Cifră de afaceri 2025: peste 120.000 €
Randament investițional excepțional, peste 7% — performanță obținută la doar ~50% din capacitatea spațiului
La achiziționare, dacă se dorește, chiriașul poate rămâne în spațiu în contravaloarea unei chirii de 2000 euro/lună/
Avantaje cheie:
Investiție „plug & play” — preiei și continui activitatea
Amenajare modernă, fără necesar de investiții imediate
Vizibilitate comercială foarte bună
Potențial de creștere prin extinderea capacității
Potrivit atât pentru investitori, cât și pentru operatori din domeniu
Pentru detalii suplimentare, randamente, preț și programarea unei vizionări, vă stăm la dispoziție.
Cod ofertă / ID BLITZ: P165453
Id intern: P165453
Stadiu construcţie: Finalizat
Nr. locuri parcare: 2
Tip imobil: Bloc de apartamente
Specificații
Suprafață utilă (m²)105
ID: 16769356
Contactează vânzătorul
Companie
BLITZ Romania
pe site din 4 Sepactiv:
Nu există recenzii
Mai multe anunțuri ale utilizatorului
Cluj-Napoca, Cluj
Despre companie
Loading ad...
Contactează vânzătorul
Companie
BLITZ Romania
pe site din 4 Sepactiv:
Nu există recenzii
Loading ad...
Vezi mai multe anunturi ale acestui vânzator
Toate anunturileAnunturi similare













































































































































































































































































































































































