Catalin Popescu
pe site din 17 Nov
activ: 10 Feb 2026 21:14



525.000 eur
Companie
Bucuresti, IF
01.03.2026
Număr de telefon validat
Descriere anunt
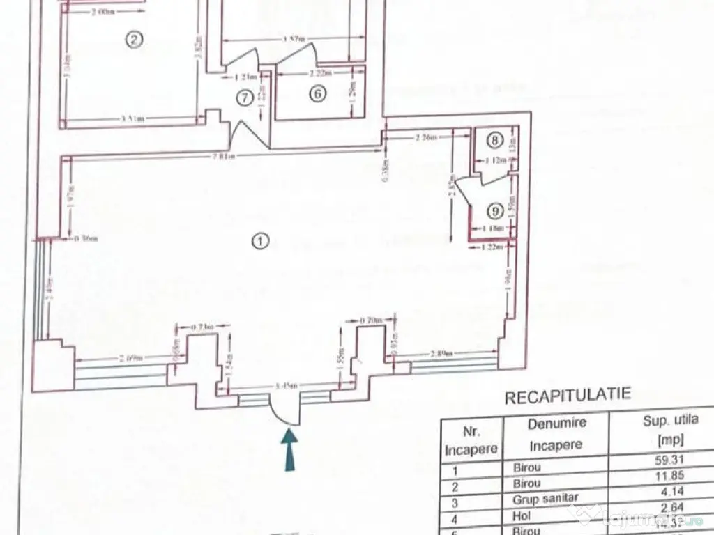
Imobiliar Expert Grup va propune spre inchiriere un spatiu stradal cu suprafata utila de 99 mp pretabil activitati comerciale cu trafic auto si pietonal intens și posibilitate de parcare.
Suprafaţă totală: 110 m²
An finalizare construcție: 2000
Vitrină: 10.0 m
Stadiu construcţie: Finalizat
Posibilitate parcare: Nu
Tip imobil: Spaţiu stradal
Specificații
Suprafață utilă (m²)99
ID: 16733121
Contactează vânzătorul
Companie
Catalin Popescu
pe site din 17 Novactiv:
Nu există recenzii
Mai multe anunțuri ale utilizatorului
Bucuresti, Bucuresti-Ilfov
Despre companie
Loading ad...
Contactează vânzătorul
Companie
Catalin Popescu
pe site din 17 Novactiv:
Nu există recenzii
Loading ad...
Vezi mai multe anunturi ale acestui vânzator
Toate anunturileAnunturi similare




















































































































































































































































































































