BLITZ Romania
pe site din 4 Sep
activ: 10 Feb 2026 21:14





65.000 eur
Companie
Satu Mare, SM
23.10.2025
Număr de telefon validat
Descriere anunt
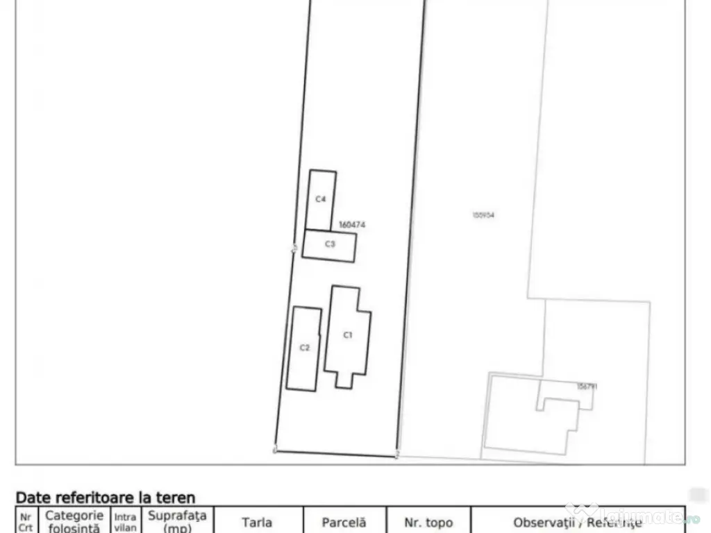
Blitz va ofera spre vanzare teren intravilan cu o suprafață de 1439 mp, situat într-o zonă liniștită, cu acces direct la drum asfaltat.
Proprietatea dispune de racord la curent electric și apă, fiind ideală pentru construcția unei locuințe moderne.
Pe teren se află:
-o casă bătrânească (utilă ca spațiu temporar de locuit sau pentru renovare);
-o casă la roșu, P+M, așa cum se vede în poze, ce oferă un bun punct de plecare pentru finalizarea unei locuințe confortabile.
Frontul stradal este de 20 metri, oferind acces facil și multiple posibilități de amenajare.
???? Pentru mai multe informații sau vizionare, nu ezitați să mă contactați!
Cod ofertă / ID BLITZ: P156106
Id intern: P156106
Specificații
Extravilan / IntravilanIntravilan
Front stradal (metri)20
UtilitățiDa
ID: 16654755
Contactează vânzătorul
Companie
BLITZ Romania
pe site din 4 Sepactiv:
Nu există recenzii
Mai multe anunțuri ale utilizatorului
Satu Mare, Satu-Mare
Despre companie
Loading ad...
Contactează vânzătorul
Companie
BLITZ Romania
pe site din 4 Sepactiv:
Nu există recenzii
Loading ad...
Vezi mai multe anunturi ale acestui vânzator
Toate anunturileAnunturi similare



































































































































































