Ioan Lungu
pe site din 17 Nov
activ: 10 Feb 2026 21:14










1.500.000 eur
Companie
Bucuresti, IF
04.03.2026
Număr de telefon validat
Descriere anunt
ID Proprietate: CP693905
---------------------------------------------------------------------------------
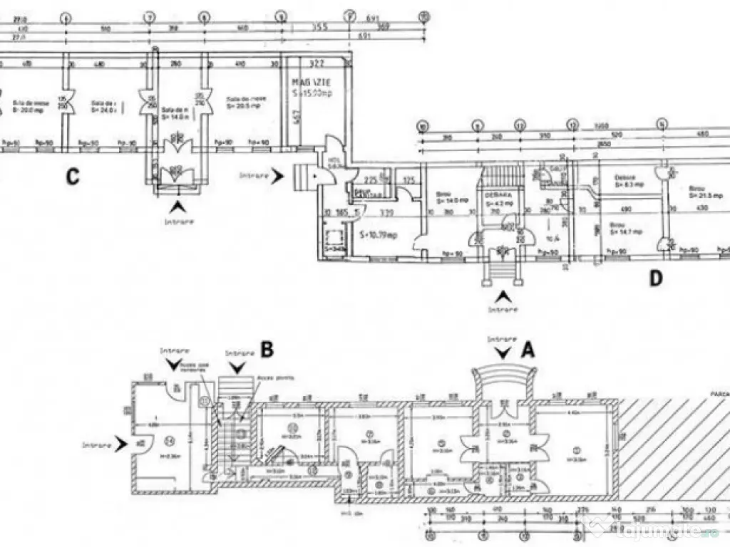
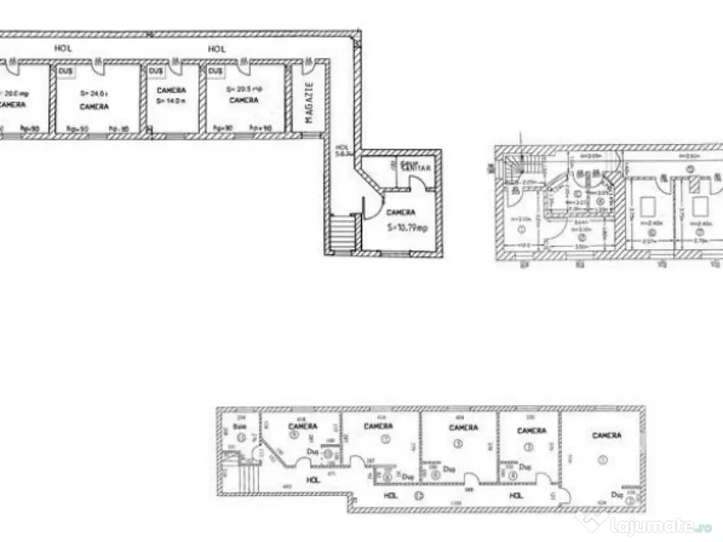
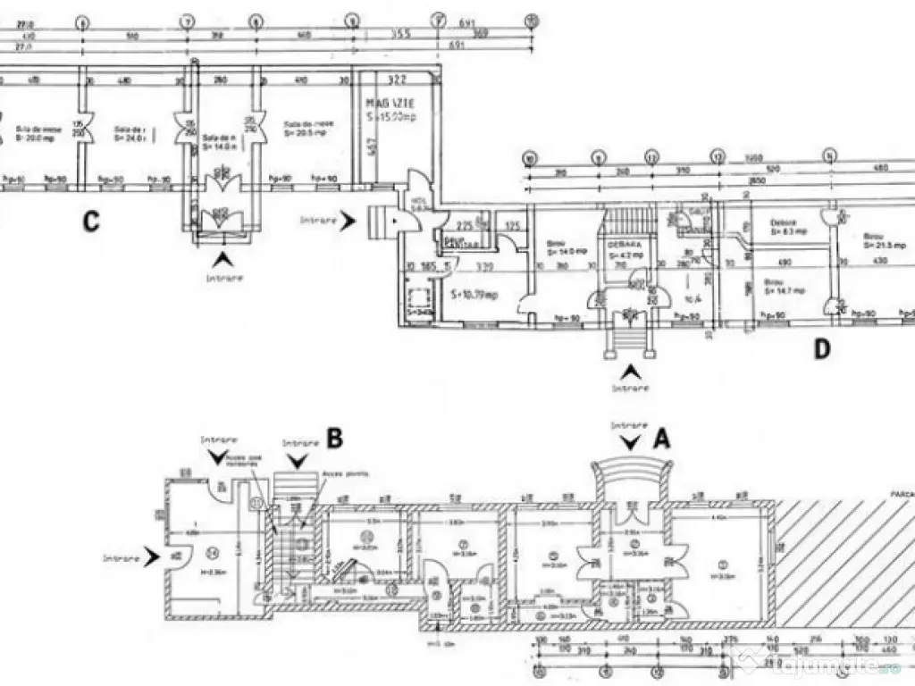
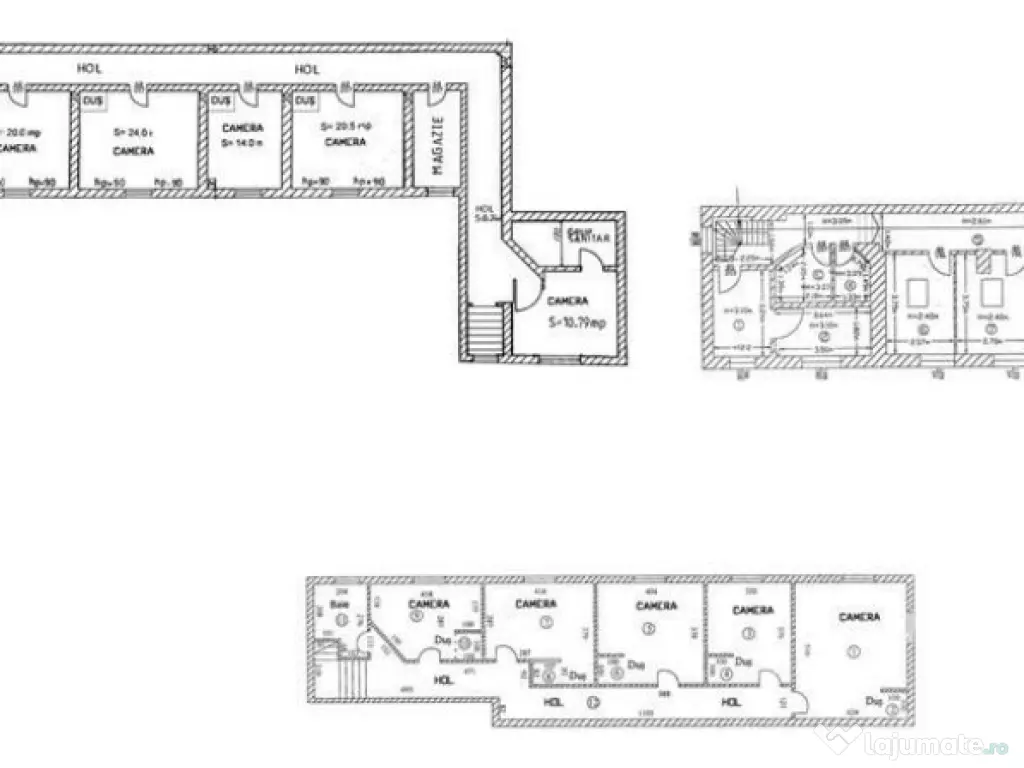
- In centrul Mun. Bucuresti, zona Unirii - Matei Basarab, curte de 1.750 mp cu doua cladiri, in total 1.000 mp construiti si o suprafata utila de 900 mp;
- Exista 6 ntrari pentru acces la parter si mansarda, cu destinatie pretabila pentru hostel, pensiune, birouri, cazare personal, camin si orice alt domeniu unde este util un numar mare de camere. Imobilul se compune din 30 camere si 20 bai amenajate , 90% mobilate plus holuri si anexe rezultand un total de 70 incaperi.
- Utilitati existente in spatiu: Apa; Canalizare; Curent electric; Gaze naturale;
- Dotari existente in spatiu: Contorizare separata (apa, electricitate, gaze naturale); Centrala termica proprie; Grupuri sanitare; Bucatarii; Pivnite la subsol etc.;
- Exista 10 locuri de parcare;
- Primul imobil este alcatuit din doua corpuri de cladire, A si B, avand S+P+M, avand o suprafata utila de 325 mp si o suprafata utila de 300 mp. Acest corp de cladire dispune de urmatoarele: 9 camere, 1 bucatarie, 5 dusuri, 1 grup sanitar, 1 camera la subsol (pivnita). Finizajele interioare sunt la un nivel standard, obisnuit;
- Al doilea imobil este alcatuit din doua corpuri de cladire, C si D, avand S+P+M, avand o suprafata construita de 675 mp si o suprafata utila de 600 mp. Acest corp de cladire dispune de urmatoarele: 26 camere, 2 bucatarii, 6 dusuri, 7 bai, 2 magazii, 3 pivnite totalizand 75 mp si 3 scari de acces la mansarda. Corpul D dispune de finisaje bune .Odata cu acest imobil imobil se cesioneaza o asociatie care detine spatiul prin contract, fiind luat in inchiriere de la Primaria Capitalei, incepand cu anul 2001;
- Exista toate actele si avizele necesare;
- Proprietatea dispune de cadastru si este intabulata;
- Terenul este cu Legea nr. 112 dar foloseste curtea in comun cu cel de-al doilea imobil.
Număr niveluri imobil: mai mult de 12
Număr Băi: mai mult de 3
Posibilitate parcare: Da
Nr. locuri parcare: 5-10
Curent
Apă
Canalizare
Gaz
Încălzire
Climă
Subsol
Specificații
Numar CamereMai mult de 5
Suprafață utilă (m²)900
An constructie1950
Suprafata construita (m²)1750
Număr niveluri imobilMai mult de 12
ID: 10110372
Contactează vânzătorul
Companie
Ioan Lungu
pe site din 17 Novactiv:
Nu există recenzii
Mai multe anunțuri ale utilizatorului
Bucuresti, Bucuresti-Ilfov
Despre companie
Loading ad...
Contactează vânzătorul
Companie
Ioan Lungu
pe site din 17 Novactiv:
Nu există recenzii
Loading ad...
Vezi mai multe anunturi ale acestui vânzator
Toate anunturileAnunturi similare














































































































































































































































































































































































































































