BLITZ Romania
pe site din 4 Sep
activ: 10 Feb 2026 21:14



187.082 eur
Companie
Descriere anunt
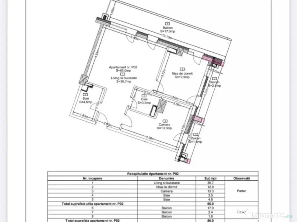
BLITZ va propune spre vânzare un apartament spațios, situat într-un ansamblu rezidențial nou din cartierul Zorilor, una dintre cele mai căutate zone ale orașului.
???? Suprafață utilă generoasă
Apartamentul este poziționat la parter și este compartimentat eficient, ideal pentru o familie sau pentru investiție. Acesta este semifinisat, oferindu-vă libertatea de a-l amenaja după gustul propriu.
???? Compartimentare:
• Living cu bucătărie open space – zonă de zi luminoasă și aerisită
• 1 dormitor confortabil si o nisa de dormit
• 2 băi
• 3 balcone – perfecte pentru relaxare
???? Stadiu de predare:
• Semifinisat: pereți tencuiți și gletuiți, sapa turnată, centrală termică proprie, instalații trase pe poziții, uși la intrare montate
????️ Ansamblu modern:
Imobilul face parte dintr-un complex rezidențial modern, cu acces securizat, spații verzi amenajate și locuri de parcare disponibile.
???? Locație excelentă
Zona Zorilor oferă acces rapid către centrul orașului, spitale, universități, magazine și mijloace de transport în comun.
Cod ofertă / ID BLITZ: P146588
Id intern: P146588
Confort: 1
Tip imobil: Bloc de apartamente
Număr Băi: 2
Specificații
Numar Camere3
Suprafață utilă (m²)65
An constructie2021
EtajParter
CompartimentareDecomandat
Număr niveluri imobil15
Mobilat/Utilat3
ID: 16516961
Contactează vânzătorul
Companie
BLITZ Romania
pe site din 4 Sepactiv:
Nu există recenzii
Mai multe anunțuri ale utilizatorului
Cluj-Napoca, Cluj
Despre companie
Loading ad...
Contactează vânzătorul
Companie
BLITZ Romania
pe site din 4 Sepactiv:
Nu există recenzii
Loading ad...
Vezi mai multe anunturi ale acestui vânzator
Toate anunturileAnunturi similare






































































































































































































































































































































