Robert Rosca
pe site din 6 Apr
activ: 10 Feb 2026 21:14


















225.000 eur
Companie
Descriere anunt
0% comision
R.E.A. Imobiliare va propune spre vanzare o casa cu 6 camere P+1+Pod in comuna Peris, Ilfov pe strada Anton Pann + teren in proprietate 1317m.p.
Casa a fost construita in 2008 pe structura de beton, planseu de beton intre etaje si pereti de BCA, dispune de izolatie de 10cm.
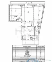
Are o amprenta de 129m.p. si este impartita pe 2 etaje precum urmeaza:
La parter livingul din care se face accesul catre bucatarie, cele 2 dormitoare si baie + scara interioara.
La etaj se regaseste un al doilea salon/living cu acces catre terasa, hol cu iesire catre terasa, din care se face accesul catre cele 3 dormitoare.
Terasa are aproximativ 25mp. Suprafata utila totala 215m.p. Suprafata utila per etaj 107,50mp.
Terenul este impartit precum urmeaza:
897 m.p. curti si constructii
420 m.p. teren arabil
Pe cei 897 m.p. s-au construit inca alte 5 anexe/constructii:
O casa construita in 1970 din paianta cu amprenta 60mp.
O camera tehnica cu amprenta 9mp.
3 magazii din care doar una cu acces catre beci in suprafete de 27mp, 32mp, 39mp. toate pe structura usoara.
Toate aceste constructii impreuna cu constructia principala ocupa 296m.p. => TEREN LIBER/CURTE LIBERA ramasa 1010m.p. din care 420m.p. terenul arabil.
Casa poate fi eliberata de mobila complet.
La momentul prezent dispune de fosa, dar si de canalizare, necesita racordare. De asemenea, gazele sunt la poarta, necesita racordare.
Confortul termic este realizat prin intermediul caloriferelor conectate la centrala termica pe lemne.
Detaliile de ordin tehnic au caracter orientativ, acestea fiind preluate direct de la proprietar.
Pentru alte detalii si vizionari ne puteti contacta mentionand codul proprietatii: P10942
Id intern: P10942
Număr niveluri imobil: 1
Număr Băi: 2
Curent
Apă
Canalizare
Gaz
Specificații
Suprafață utilă (m²)215
An constructie2008
Numar CamereMai mult de 5Mobilat/Utilat3
Suprafata construita (m²)1317
Număr niveluri imobil1
ID: 16816059
Contactează vânzătorul
Companie
Robert Rosca
pe site din 6 Apractiv:
Nu există recenzii
Mai multe anunțuri ale utilizatorului
Peris, Bucuresti-Ilfov
Despre companie
Loading ad...
Contactează vânzătorul
Companie
Robert Rosca
pe site din 6 Apractiv:
Nu există recenzii
Loading ad...
Vezi mai multe anunturi ale acestui vânzator
Toate anunturileAnunturi similare






































































































































































































































































































































































































































