Vladimir somkereki
pe site din 5 Nov
activ: 10 Feb 2026 21:14











165.000 eur
Companie
Descriere anunt
În reprezentare exclusivă – Comision 0% pentru cumpărător!
Îți prezentăm două proprietăți premium în sat Săsar – oportunități rare pentru cei care caută spațiu, calitate și liniște!
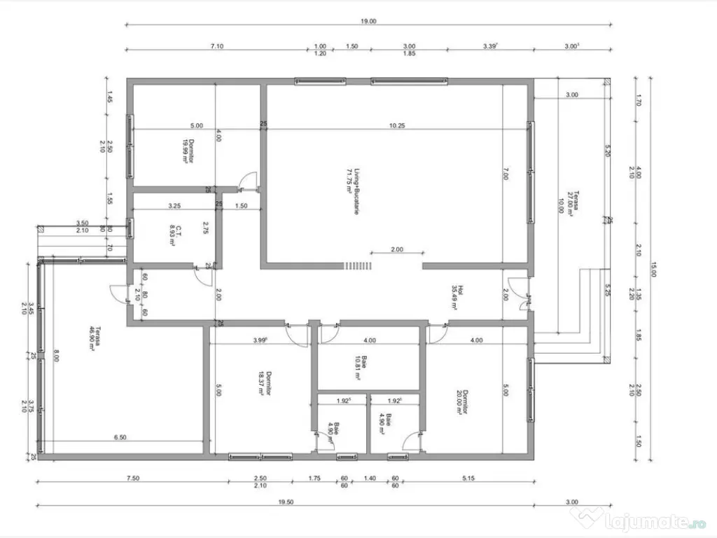
Prima casă este deja ridicată la roșu, cu acoperiș din tablă, structură integrală de cărămidă și un proiect foarte bine gândit. O locuință extrem de spațioasă, cu 242 mp utili pe un singur nivel – perfectă pentru familii cu pretenții sau pentru cei care doresc să își amenajeze casa visurilor exact așa cum își doresc.
Se vinde în stadiul actual și include tot polistirenul necesar pentru izolare, deja achiziționat si cimentul pentru tencuiala interioară.
Avantaj major: există poze din întreaga perioadă a construcției, plus toate actele doveditoare de achiziție a materialelor, ceea ce oferă transparență totală asupra calității lucrărilor.
Preț: 165.000 €
A doua casă are aproape același proiect și aceleași suprafețe, fiind amplasată chiar lângă prima. Dispune de fundația complet turnată, iar toate materialele sunt deja cumpărate , cărămidă , fier beton, acoperiș ,izolație – noul proprietar trebuie doar să continue construcția conform planului.
Preț: 135.000 € în stadiul actual.
Se poate vinde și complet ridicată, cu preț recalculat în funcție de stadiul dorit.
Ambele proprietăți sunt amplasate pe un teren generos de 13 ari, au drum privat și dispun de toate utilitățile: gaz, curent, apă, canalizare, internet.
Fundațiile sunt solide, materialele folosite sunt de top, iar zona este liniștită, ideală pentru o casă de familie sau o investiție sigură.
Pentru mai multe detalii, va rog sa ma contactați!
Iar pentru video de prezentare TikTok : VladimirSKK
Număr niveluri imobil: 1
Număr Băi: 3
Posibilitate parcare: Nu
Curent
Apă
Canalizare
Gaz
Specificații
Numar Camere5
Suprafață utilă (m²)242
An constructie2024
Suprafata construita (m²)1300
Număr niveluri imobil1
ID: 16689497
Contactează vânzătorul
Companie
Vladimir somkereki
pe site din 5 Novactiv:
Nu există recenzii
Mai multe anunțuri ale utilizatorului
Recea, Maramures
Despre companie
Loading ad...
Contactează vânzătorul
Companie
Vladimir somkereki
pe site din 5 Novactiv:
Nu există recenzii
Loading ad...
Vezi mai multe anunturi ale acestui vânzator
Toate anunturileAnunturi similare















































































































































































































































































































































































