





164.000 eur
Persoana juridica
Descriere anunt
Agenția Experți Imobiliari vă oferă spre achiziție o casă modernă P+M, construită în 2025, situată în Agigea, zonă nouă, liniștită și în plină dezvoltare.
Proprietatea este amplasată pe un teren de 362 mp, oferind suficient spațiu pentru amenajarea unei grădini, terase, foișor sau zonă de relaxare.
Locuința are:
- Suprafață construită parter: 92,5 mp
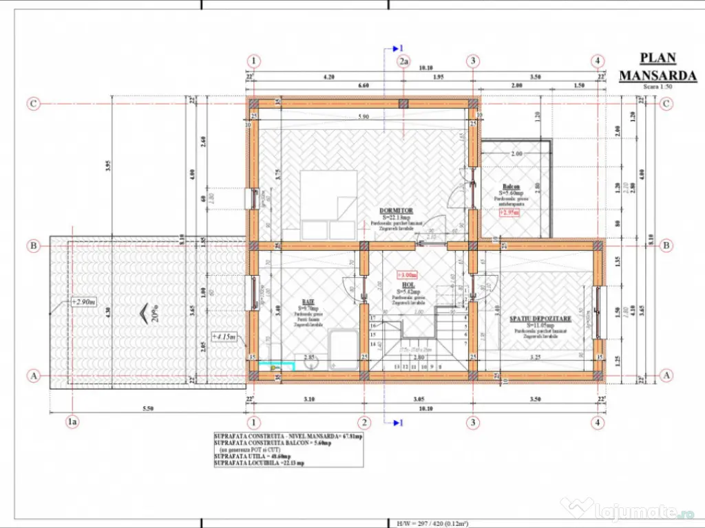
- Suprafață construită mansardă: 67,81 mp
- Suprafață utilă totală: 121,55 mp
- Casa este realizată cu materiale premium, punând accent pe eficiență energetică, confort și durabilitate.
???? Compartimentare practică și spații luminoase
Parter:
- Dormitor copil / birou – 11 mp
- Living generos cu bucătărie open-space – 32,53 mp
- Baie – 6,12 mp
- Terasă acoperită în spatele casei – 18,19 mp, cu acces direct din bucătărie (poate fi închisă și transformată în bucătărie separată sau zonă de dining)
Mansardă:
- Dormitor matrimonial spațios – 22,13 mp, cu zone pentru depozitare și acces la balcon (5,60 mp)
- Dormitor copil – 11,05 mp
- Baie mare – 9,70 mp, cu spațiu pentru mașină de spălat și uscător
Compartimentarea este echilibrată, oferind intimitate la etaj și zonă de zi aerisită la parter.
???? Dotări și materiale premium
- Izolație exterioară cu polistiren Sikatherm EPS100 – 10 cm
- Tâmplărie PVC Salamander 76 mm, culoare gri antracit, cu geam tripan (izolare termică și fonică superioară)
- Acoperiș din tablă Wetterbest zincată 0,5 mm, cu pazie și sageac metalice
- Încălzire în pardoseală Purmo (placă cu nuturi, țeavă și distribuitoare originale)
- Tablou electric și siguranțe Gewiss
???? Utilități
Casa este racordată la:
- Apă
- Canalizare
- Curent electric
Branșamentul de gaz este realizat până la limita proprietății (la gard), urmând doar montarea contorului și racordarea instalației în interior.
Proprietatea reprezintă o oportunitate excelentă pentru cei care își doresc o casă nouă în Agigea, aproape de Constanța și de litoral, într-o zonă rezidențială aerisită, cu acces facil către oraș.
Casa este in executie, urmand a se preda la stadiul de alb la interior, si pentru o suma aditionala in plus, se poate preda si la gata
???? Ești pregătit să o transformi în "acasă"?
Contactează-ne pentru vizionare – e mai mult decât o casă, e un nou început!
E.9(P32939)
Id intern: P32939
Număr Băi: 2
Curent
Apă
Canalizare
Gaz
Specificații
ID: 16750819
Contactează vânzătorul
Persoana juridica
Office
pe site din 27 Novactiv:
Nu există recenzii
Mai multe anunțuri ale utilizatorului
Agigea, Constanta
Drepturile consumatorilor
Acest anunț a fost publicat de către un vânzător privat.
Ca urmare, legile privind drepturile consumatorilor nu se aplică în cazul achizițiilor pe care le faci de la acest vânzător. Este deosebit de important să respecți sfaturile noastre cu privire la siguranță în interacțiunile cu vânzători privați.
Loading ad...
Contactează vânzătorul
Persoana juridica
Office
pe site din 27 Novactiv:
Nu există recenzii
Loading ad...
Vezi mai multe anunturi ale acestui vânzator
Toate anunturileAnunturi similare



























































































































































































































































































































































































































































































































