Victor Negru
Iasi, Iasi
pe site din 9 Sep
activ: 10 Feb 2026 21:14


















155.000 eur
Companie
Descriere anunt
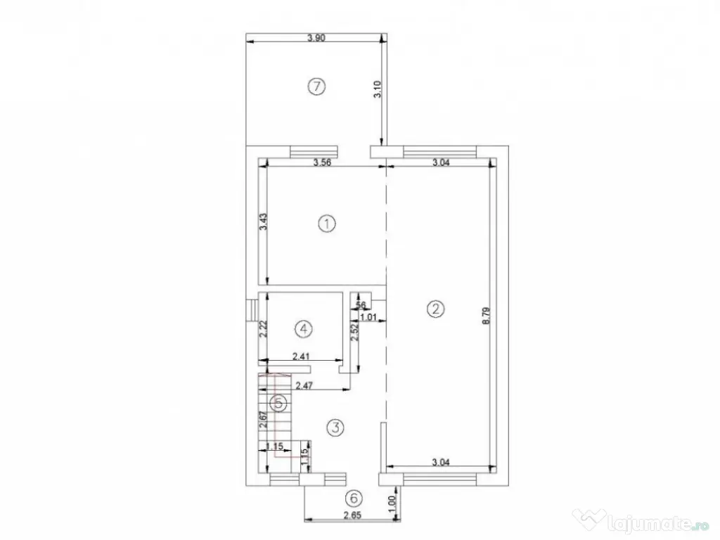
Vă propunem spre vânzare casele din complexul rezidențial FRCA Concept Construct, un ansamblu modern format din module de tip cvadruplex (câte 4 unități), fiecare cu regim de înălțime P+1E+pod. Aceste case oferă o compartimentare funcțională și spațioasă, ideale pentru familii, având o suprafață utilă de 106 mp și o suprafață construită de 131 mp. Suprafața terenului variază între 172 mp și 263 mp per unitate, oferind astfel fiecărei case o curte generoasă.
Complexul este amplasat pe Platoul Beldiman, la limita dintre Valea Lupului și Rediu, Iași, oferind un acces facil către oraș și o panoramă liniștitoare.
Compartimentare interioară:
Parter:
Hol de acces.
Grup sanitar.
Sufragerie luminoasă, cu zonă de dining.
Bucătărie deschisă, cu ieșire directă spre terasa din spate (amenajată cu beton amprentat).
Etaj:
Hol spațios de distribuție.
3 dormitoare confortabile, fiecare bine luminat natural.
Grup sanitar complet utilat.
Balcon cu vedere asupra curții.
Pod:
Construcție solidă cu placă de beton și izolație, ideal pentru depozitare suplimentară.
Facilități exterioare:
Fiecare unitate dispune de 2 locuri de parcare amenajate în fața casei.
Curte privată delimitată, perfectă pentru relaxare sau amenajarea unui spațiu verde.
Terasă spațioasă, ideală pentru momentele petrecute în aer liber.
Detalii tehnice și de construcție:
Fundație continuă din beton armat.
Structură pe cadre de beton armat, cu zidărie din cărămidă leiertherm (290x240x238).
Pod cu placă de beton și izolație, oferind o excelentă eficiență termică și acustică.
Finisaje moderne, incluzând parchet laminat, pereți finisați și vopsiți, precum și ferestre mari pentru o bună iluminare naturală.
Prețuri:
Unitățile de margine:
144.000 Euro pentru plata cash.
149.000 Euro pentru achiziția prin credit.
Unitățile de mijloc:
134.000 Euro pentru plata cash.
139.000 Euro pentru achiziția prin credit.
Avantaje suplimentare:
Design modern și funcțional.
Pod utilizabil pentru depozitare.
Zonă liniștită, dar cu acces rapid către facilitățile orașului Iași.
Pentru mai multe detalii și pentru programarea unei vizionări, vă rugăm să contactați consilierul nostru, Victor Negru, din cadrul companiei Invest Imobiliare, la numărul de telefon 0744 102 517.
Id intern: P6233
Număr niveluri imobil: 1
Număr Băi: 2
Comision cumpărător: 3%
Nr. locuri parcare: 2
Curent
Apă
Canalizare
Gaz
Specificații
Numar Camere4
Suprafață utilă (m²)105
An constructie2024
Suprafata construita (m²)263
Mobilat/Utilat3
Număr niveluri imobil1
ID: 16164053
Contactează vânzătorul
Companie
Victor Negru
pe site din 9 Sepactiv:
Nu există recenzii
Mai multe anunțuri ale utilizatorului
Iasi, Iasi
Despre companie
Loading ad...
Contactează vânzătorul
Companie
Victor Negru
pe site din 9 Sepactiv:
Nu există recenzii
Loading ad...
Vezi mai multe anunturi ale acestui vânzator
Toate anunturileAnunturi similare


































































































































































































































































































































































































































































































