Gabriel Diaconeasa
pe site din 17 Nov
activ: 10 Feb 2026 21:14












1.600 eur
Companie
Descriere anunt
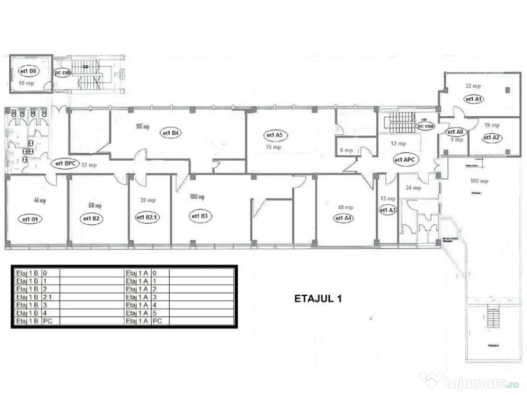
Imobilul detine un teren in total de 1.503,00 mp si constructie D+P+3 in suprafata utilă de 3342 mp.
Clădirea este pretabila pentru clinica, salon de infrumusetare, etc. având lăţimea scărilor mai mare de 1.20 ml şi 2 întrări sau se poate închiria pentru birouri asa cum a fost folosita pana în prezent. Se poate inchiria spatii cuprinse intre 30mp pana la 1000mp.Pretul este de 8 euro/mp +TVA, la care se adauga mentenanta de 3 euro/mp +TVA. Mentenanta include servicii de curatenie, electricitate spatii comune,si caldura si apa calda.
Suprafaţă totală: 200 m²
An finalizare construcție: 1970
Stadiu construcţie: Finalizat
Posibilitate parcare: Nu
Tip imobil: Clădire de birouri
Specificații
Suprafață utilă (m²)200
ID: 16004892
Contactează vânzătorul
Companie
Gabriel Diaconeasa
pe site din 17 Novactiv:
Nu există recenzii
Mai multe anunțuri ale utilizatorului
Bucuresti, Bucuresti-Ilfov
Despre companie
Loading ad...
Contactează vânzătorul
Companie
Gabriel Diaconeasa
pe site din 17 Novactiv:
Nu există recenzii
Loading ad...
Vezi mai multe anunturi ale acestui vânzator
Toate anunturileAnunturi similare














































































































































































































































































































































