Emil Danciu
pe site din 19 Dec
activ: 10 Feb 2026 21:14




421.200 eur
Companie
Descriere anunt
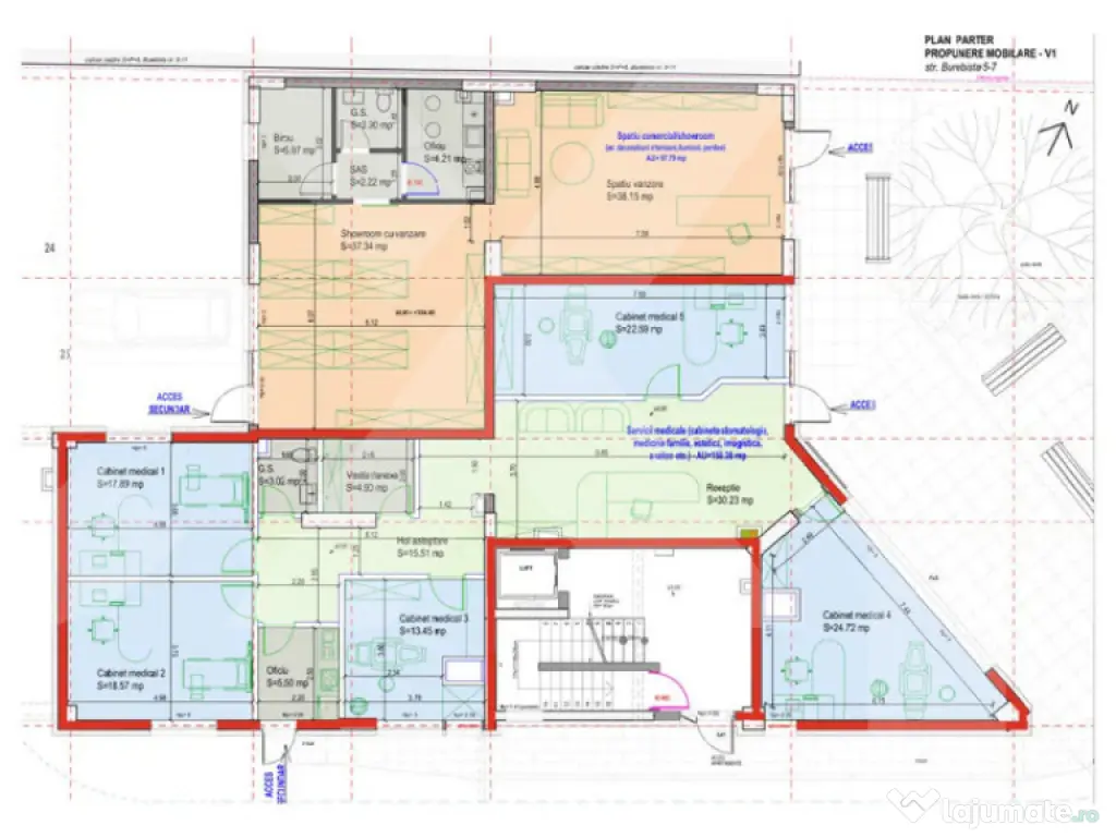
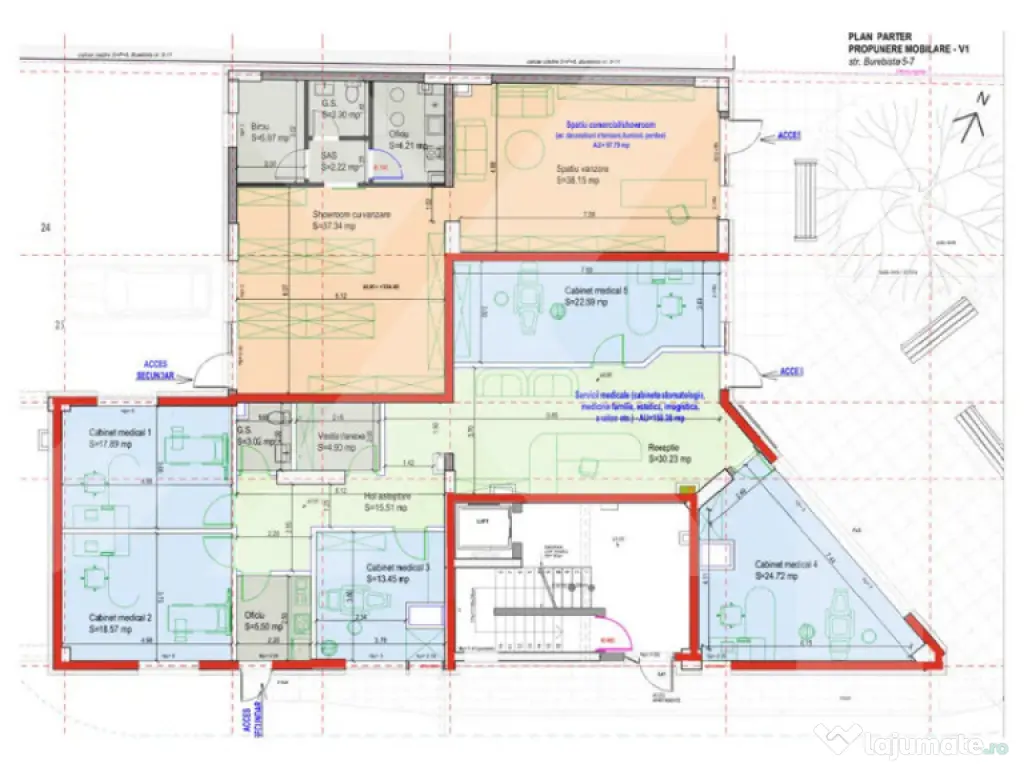
Descoperiți oportunitatea perfectă de investiție într-un spațiu comercial premium situat în inima semicentrală a Clujului, pe strada Burebista 5-7. Acest proiect mixt, aflat în construcție și proiectat pentru eficiență energetică nZEB (Near Zero Energy Building), oferă un echilibru ideal între accesibilitate urbană și liniște rezidențială, la doar 800 de metri de Piața Mihai Viteazu și 300 de metri de Gara Centrală și Parcul Feroviarilor. Cu un consum redus de energie, panouri fotovoltaice de 75 kW care acoperă aproape jumătate din necesarul electric și finisaje moderne, reprezintă o alegere inteligentă pentru investitori care caută proprietăți sustenabile și profitabile pe termen lung.
Spațiul comercial, cu o suprafață utilă de 162,54 de metri pătrați, este poziționat la parterul clădirii de șase etaje, beneficiind de două intrări independente pentru un flux optim de clienți. Înălțimea de 3 metri permite o amenajare flexibilă, adaptată nevoilor dumneavoastră, fie că visați la o clinică medicală cu cinci cabinete, recepție și facilități sanitare, fie la un market compact, birouri elegante sau un showroom atrăgător. Proiectul include 24 de apartamente rezidențiale deasupra, un garaj subteran cu 24 de locuri de parcare și boxe de depozitare pentru rezidenți, plus spații verzi generoase de peste 250 de metri pătrați în față și în curtea interioară, cu arbori maturi pentru un ambient plăcut. Construcția a început în ianuarie 2025 și va fi predată în Iulie 2026, cu sisteme de securitate avansate, alarmă anti-incendiu autorizată ISU asigurând un mediu sigur și eficient pentru afacerea dumneavoastră.
Nu ratați șansa de a vă securiza un loc în acest proiect premium, unde investiția se transformă rapid în succes durabil. Contactați-ne astăzi pentru a programa o discuție și a explora cum acest spațiu comercial poate deveni următorul pas în portofoliul dumneavoastră.
Prețul afișat este pentru plata integrală.
Id intern: EXP506
An finalizare construcție: 2026
Stadiu construcţie: Finalizat
Comision cumpărător: 0%
Tip imobil: Bloc de apartamente
Specificații
Suprafață utilă (m²)162
ID: 16707662
Contactează vânzătorul
Companie
Emil Danciu
pe site din 19 Decactiv:
Nu există recenzii
Mai multe anunțuri ale utilizatorului
Cluj-Napoca, Cluj
Despre companie
Loading ad...
Contactează vânzătorul
Companie
Emil Danciu
pe site din 19 Decactiv:
Nu există recenzii
Loading ad...
Vezi mai multe anunturi ale acestui vânzator
Toate anunturileAnunturi similare










































































































































































































































