DejaVuImobiliare
Bucuresti, Bucuresti-Ilfov
pe site din 31 Oct
activ: 10 Feb 2026 21:14

390.000 eur
Companie
Descriere anunt
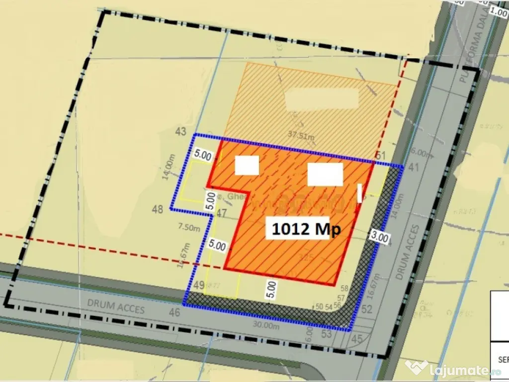
DejaVuImobiliare va ofera spre vanzare un Teren in Zona Baneasa Sisesti - 1012 mp .
Terenul este situat pe colt avand 2 deschideri 40/40
Teren este situat la o distanta de Gh Ionescu Sisesti de 60 metri .
POT 20% , CUT 0,7 , P+2M conf planului urbanistic din zona.
Pe teren se poate construi un Duplex, iar Utilitatile sunt la 30 metri.
Contact Non Stop
Comision cumpărător: 3%
Specificații
Extravilan / IntravilanIntravilan
Front stradal (metri)40
UtilitățiDa
ID: 12401953
Contactează vânzătorul
Companie
DejaVuImobiliare
pe site din 31 Octactiv:
Nu există recenzii
Mai multe anunțuri ale utilizatorului
Bucuresti, Bucuresti-Ilfov
Despre companie
Loading ad...
Contactează vânzătorul
Companie
DejaVuImobiliare
pe site din 31 Octactiv:
Nu există recenzii
Loading ad...
Vezi mai multe anunturi ale acestui vânzator
Toate anunturileAnunturi similare




































































































































