Florin Ghenceanu
Bucuresti, Bucuresti-Ilfov
pe site din 24 Aug
activ: 10 Feb 2026 21:14


















145.200 eur
Companie
Descriere anunt
Dezvoltator(persoana fizica/persoana juridica, comision cumparator 0%),
prin biroul propriu de vanzari - tel. contact: 0720002332 - pentru detalii si vizionari) ce ofera servicii(consiliere si asistenta, bancara si notariala complete incluse, postvanzare, indiferent de modul de achizitie, cash /credit.
vand
- vila noua in duplex(pret 120000euro+TVA(21%)=145200euro, daca se alege vila care se vinde de pe persoana fizica), cu predare la cheie(nemobilata-neutilata, finisata complet, utilitatile zonei(put propriu(la 30-35m adancime - a doua panza freatica), hidrofor, canalizare cu fosa septica betonata -vidanjabila, energie electrica, gaze);
- vila noua in duplex(pret 120000euro + TVA(21%)=145200euro, DACA SE CUMPARA PE FIRMA, SE POATE DEDUCE TVA-UL, astfel putandu-se achizitiona la pretul de 120000euro, cu predare la cheie(nemobilata-neutilata, finisata complet, utilitatile zonei(put propriu(la 30-35m adancime - a doua panza freatica), hidrofor, canalizare cu fosa septica betonata -vidanjabila, energie electrica, gaze),
situata în Comuna Berceni, judetul Ilfov.
Recomandari:
1. - se pot face teste gratuie la Romstal, pentru verificarea calitatii apei, potabilitate, duritate, etc.
2. - pentru cine doreste sa investeasca intr-un sistem/statie de dedurizare a apei, daca este cazul, costurile se situeaza intre 4000-5000 Lei.
Suprafata totala teren pentru fiecare vila in parte, aprox. 220 mp din care amprenta la sol de 61mp.
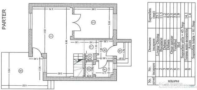
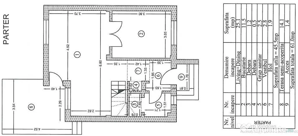
Compunere - cf. releveului/schitelor atasate:
- Parter: living + dining, bucătărie, baie, vestibul, hol, 2 debarale, terasa semi-acoperita cu suprafață total de 61,5 mp
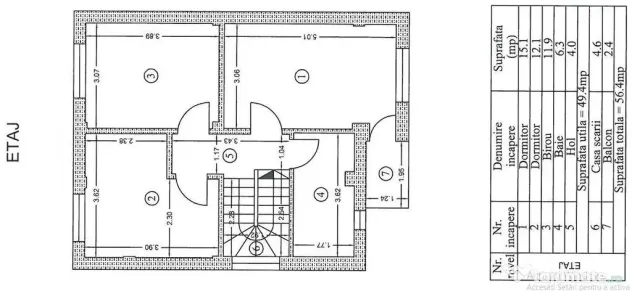
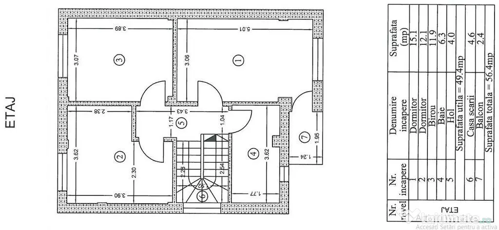
- Etaj: 3 dormitoare(unul este trecut ca birou), baie, hol, balcon - cu suprafata totala de 56,4mp
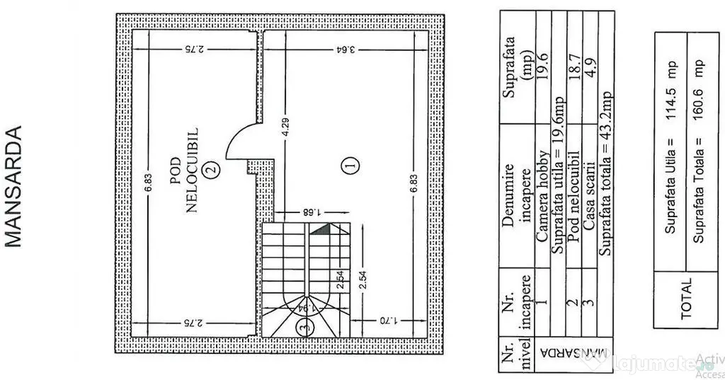
- Mansardă: camera hobby, pod(se poate folosi pentru depozitare) - cu suprafata totala de 43,2mp
Nota: fotografiile sunt dintr-o vila asemanatoare(finisajele se pot personaliza).
Facilități: statie STB, statie de metrou Tudor Arghezi, Mega Image, Carrefour , farmacie, scoli, grădinițe stat / privat, activități cu copii ( sport, pian, limbi străine, înot, etc) , sală de fitness, cofetărie, măcelărie, piață agroalimentară, echitație , restaurante , săli evenimente, salon de înfrumusețare.
Număr niveluri imobil: 1
Număr Băi: 2
Posibilitate parcare: Da
Nr. locuri parcare: 2
Curent
Apă
Canalizare
Gaz
Încălzire
Specificații
Suprafață utilă (m²)132
An constructie2024
Numar Camere5Mobilat/Utilat3
Suprafata construita (m²)220
Număr niveluri imobil1
ID: 16823417
Contactează vânzătorul
Companie
Florin Ghenceanu
pe site din 24 Augactiv:
Nu există recenzii
Mai multe anunțuri ale utilizatorului
Berceni, Bucuresti-Ilfov
Despre companie
Loading ad...
Contactează vânzătorul
Companie
Florin Ghenceanu
pe site din 24 Augactiv:
Nu există recenzii
Loading ad...
Vezi mai multe anunturi ale acestui vânzator
Toate anunturileAnunturi similare















































































































































































































































































































































































































































































































