Lorian-Emanuel Gherasim
pe site din 7 Mar
activ: 10 Feb 2026 21:14
















235.000 eur
Companie
Descriere anunt
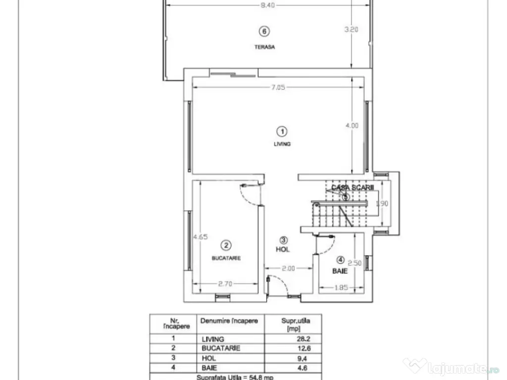
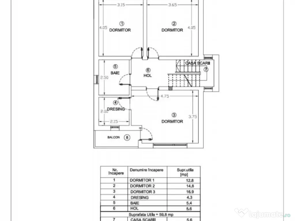
Invest Imobiliare vă propune spre vânzare o casă individuală cu 4 camere și 2 băi în zona Bârnova.
Casa dispune de suprafață utilă de 115 mp și teren generos, cca 500 mp, fiind amplasată într-o zonă aerisită cu vecinătăți discrete.
Casa este finalizată în proporție de 95%.
Se predă la cheie.
În prezent există posibilitatea de alegere a finisajelor.
Id intern: P9062
Număr niveluri imobil: 1
Număr Băi: 2
Comision cumpărător: 3%
Specificații
Suprafață utilă (m²)115
An constructie2026
Numar Camere4Suprafata construita (m²)500
Număr niveluri imobil1
ID: 16817027
Contactează vânzătorul
Companie
Lorian-Emanuel Gherasim
pe site din 7 Maractiv:
Nu există recenzii
Mai multe anunțuri ale utilizatorului
Iasi, Iasi
Despre companie
Loading ad...
Contactează vânzătorul
Companie
Lorian-Emanuel Gherasim
pe site din 7 Maractiv:
Nu există recenzii
Loading ad...
Vezi mai multe anunturi ale acestui vânzator
Toate anunturileAnunturi similare














































































































































































































































































































































































































