Ionut Costin Stefan
pe site din 16 Feb
activ: 10 Feb 2026 21:14


















235.000 eur
Companie
Descriere anunt
ILFOV IMOBILIAR – „O mutare isteață!”
CRĂIȚELOR BOUTIQUE OTOPENI – Ultimele 2 case disponibile din cele 5 | Gated community | Construcții finalizate | Buget pentru finisare
Preț de la: 235.000 EUR + TVA
Asa cum v-am obisnuit, COMISION 0.
Un ansamblu intim, format din 5 case single, construite cu responsabilitate și atenție la detalii.
Casele sunt amplasate în faza a doua a proiectului, cu acces separat pe un drum amenajat, într-o zonă liniștită, cu trafic redus. Prin drumul de servitute se ajunge rapid (pe jos) în zona centrală a Otopeniului, chiar sub pasarela pietonală, lângă stațiile de autobuz și viitoarea stație de metrou.
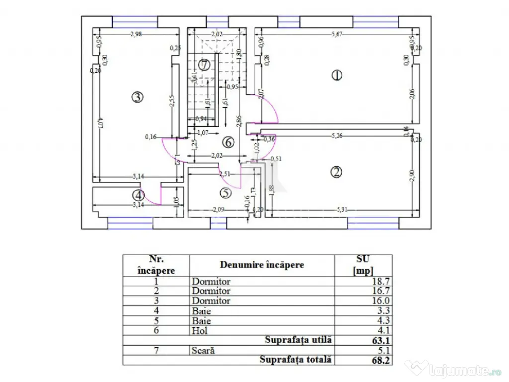
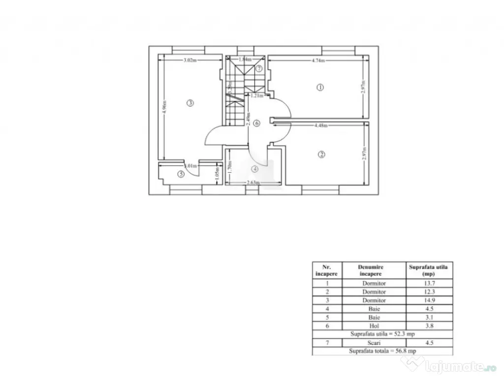
CASA SINGLE TIP 1 – P+1+M
Suprafață construită: 219 mp
Suprafață utilă (cu terasă): 163 mp
Teren: 245 mp
Disponibilitate: 1/2 unități
Preț: 260.000 EUR + TVA
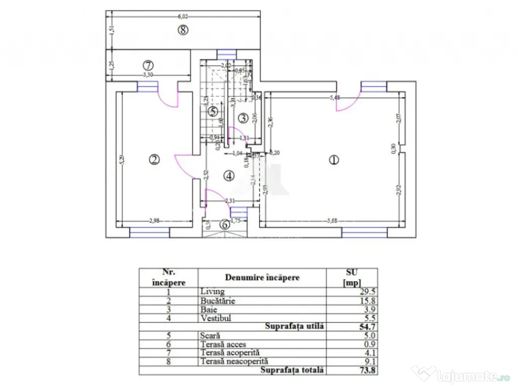
CASA SINGLE TIP 2 – P+1
Suprafață construită: 174,26 mp
Suprafață utilă (cu terasă): 132,29 mp
Teren: 272 mp
Disponibilitate: 1/3 unități
Preț: 235.000 EUR + TVA
CONSTRUCȚII DE CALITATE
Structură pe cadre de beton armat
Pereți din cărămidă (exterior + interior)
Tâmplărie tripan
Încălzire în pardoseală
Centrală proprie
Branșamente individuale
2 locuri de parcare amenajate în fața fiecărei case
Buget inclus pentru personalizarea finisajelor
Un proiect boutique pentru cei care caută liniște, confort și intimitate în Otopeni.
Oferim consultanță prin broker pentru obținerea unui eventual credit imobiliar.
Dacă doriți o colaborare cu agenția noastră, ne puteți scrie pe adresa de e-mail sau ne puteți vizita la sediul din Otopeni, Str. 23 August nr. 152A, Ilfov.
Contact:
[email protected]
0733 041 859 – Costin Ștefan, Broker/Owner
Id intern: P324
Număr niveluri imobil: 1
Număr Băi: 3
Comision cumpărător: 0%
Nr. locuri parcare: 3
Curent
Apă
Canalizare
Gaz
Specificații
Suprafață utilă (m²)132
An constructie2024
Numar Camere4Suprafata construita (m²)272
Număr niveluri imobil1
ID: 16763934
Contactează vânzătorul
Companie
Ionut Costin Stefan
pe site din 16 Febactiv:
Nu există recenzii
Mai multe anunțuri ale utilizatorului
Otopeni, Bucuresti-Ilfov
Despre companie
Loading ad...
Contactează vânzătorul
Companie
Ionut Costin Stefan
pe site din 16 Febactiv:
Nu există recenzii
Loading ad...
Vezi mai multe anunturi ale acestui vânzator
Toate anunturileAnunturi similare






























































































































































































































































































































































