Gheorghe Daniel Ivan
pe site din 19 Sep
activ: 10 Feb 2026 21:14









3.800.000 eur
Companie
Descriere anunt
Comision cumparator: 0%
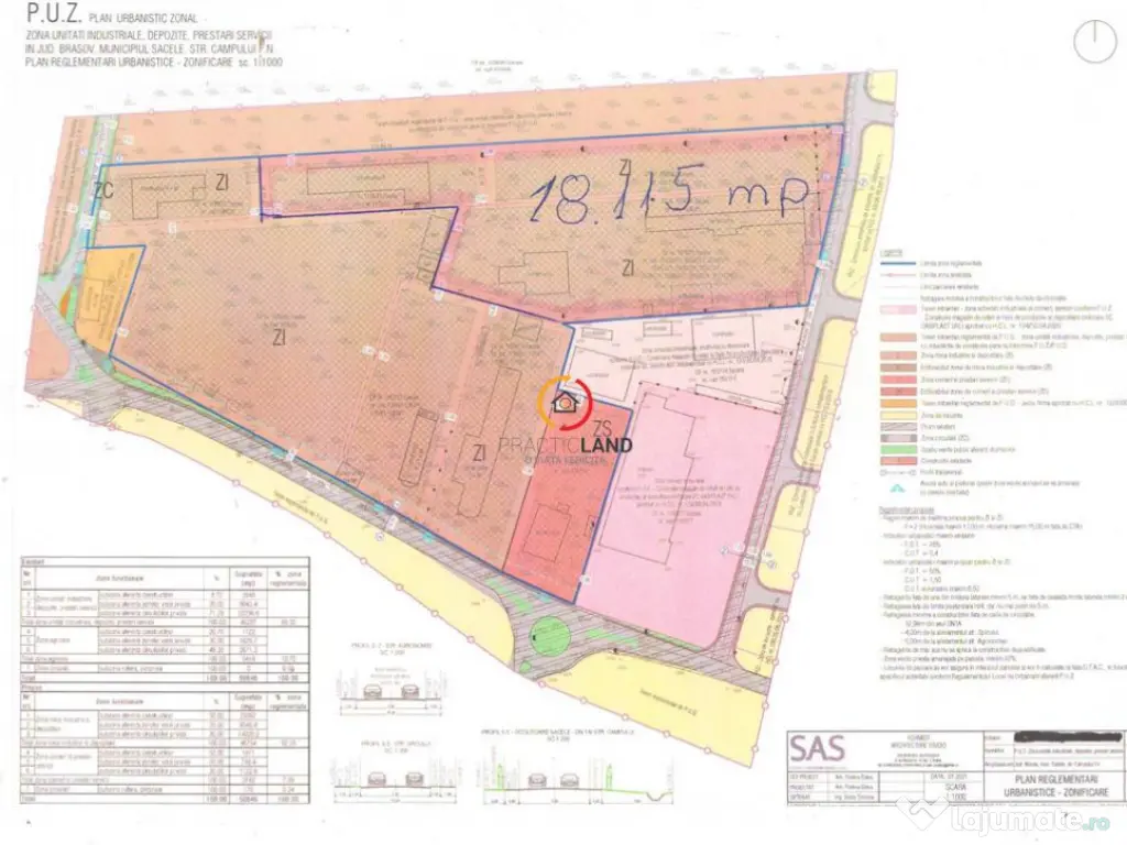
Teren intravilan 18115 mp si doua constructii 814mp
Terenul intravilan de 18.115 mp si cele doua constructii cu o suprafata totala de 814 mp, situat langa Lidl Sacele, reprezinta o oportunitate excelenta pentru cei care doresc sa investeasca intr-o afacere profitabila. Cu acces pentru TIR, toate utilitatile necesare, un post de transformare propriu si terenul imprejmuit si amenajat, acesta este locul ideal pentru dezvoltarea unei afaceri prosperare.
Cu o front stradal impresionanta de 92 ml, terenul este amplasat in mijlocul unui cartier in plina dezvoltare, ceea ce ofera un potential imens pentru cresterea afacerii si atragerea mai multor clienti. Pozitionarea langa unul dintre cei mai aglomerati retaileri, Lidl, aduce beneficii suplimentare, cum ar fi un trafic constant si vizibilitate ridicata pentru orice tip de afacere.
Avantajul major al acestui teren este accesibilitatea pentru TIR, care il face ideal pentru diverse tipuri de afaceri care necesita transport greu de marfuri. De asemenea, toate utilitatile disponibile elimina orice grija legata de infrastructura necesara pentru desfasurarea activitatii comerciale.
Postul de transformare propriu ofera siguranta si continuitate in alimentarea cu energie electrica, asigurand functionarea optima a afacerii indiferent de situatii neprevazute. De asemenea, terenul imprejmuit si amenajat ofera un aspect ingrijit si profesional, care poate atrage clientii si le inspira incredere in afacerea desfasurata acolo.
In concluzie, terenul intravilan si constructiile oferite la vanzare reprezinta o oportunitate exceptionala pentru cei care doresc sa isi dezvolte o afacere in Sacele. Cu toate facilitatile si avantajele oferite, acest loc este perfect pentru a porni sau extinde cu succes orice tip de activitate economica.
Suprafaţă totală: 1200 m²
An finalizare construcție: 2010
Vitrină: 10 m
Stadiu construcţie: Finalizat
Înălţime spaţiu: 3 m
Număr încăperi: 6
Număr Grupuri Sanitare: 1
Posibilitate parcare: Da
Nr. locuri parcare: 20+
Tip imobil: Bloc de apartamente
Specificații
Suprafață utilă (m²)814
ID: 14656877
Contactează vânzătorul
Companie
Gheorghe Daniel Ivan
pe site din 19 Sepactiv:
Nu există recenzii
Mai multe anunțuri ale utilizatorului
Brasov, Brasov
Despre companie
Loading ad...
Contactează vânzătorul
Companie
Gheorghe Daniel Ivan
pe site din 19 Sepactiv:
Nu există recenzii
Loading ad...
Vezi mai multe anunturi ale acestui vânzator
Toate anunturileAnunturi similare













































































































































































































































































































































































