Cristian Ursu
Bucuresti, Bucuresti-Ilfov
pe site din 18 Mai
activ: 10 Feb 2026 21:14


















210.000 eur
Companie
Descriere anunt
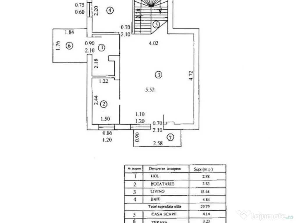
Top Home Advisors va propune spre vanzare o casuta compusa din P+1, cu o amprenta de 48.26 mp, total mp utili 85.64, 2 camere, bucatarie deschisa, 2 gr sanitare, garaj, curte, teren 175.7 mp, constructie 2006, toate utilitatile.
Casa este construita din beton armat- sistem Amvic.
Pentru mai multe detalii si pentru a stabili o vizionare va asteptam sa ne contactati.
Broker exclusiv!
Comision vanzare standard
Vizionarea se face doar în baza semnarii unui acord de vizionare conform codului civil, art 2.096-2.102. Va multumim pentru intelegere.
Număr niveluri imobil: mai mult de 12
Număr Băi: 2
Posibilitate parcare: Da
Nr. locuri parcare: 2
Curent
Apă
Canalizare
Gaz
Încălzire
Climă
Specificații
Numar Camere2
Suprafață utilă (m²)85
An constructie2006
Suprafata construita (m²)175
Mobilat/Utilat3
Număr niveluri imobilMai mult de 12
ID: 16598586
Contactează vânzătorul
Companie
Cristian Ursu
pe site din 18 Mayactiv:
Nu există recenzii
Mai multe anunțuri ale utilizatorului
Bucuresti, Bucuresti-Ilfov
Despre companie
Loading ad...
Contactează vânzătorul
Companie
Cristian Ursu
pe site din 18 Mayactiv:
Nu există recenzii
Loading ad...
Vezi mai multe anunturi ale acestui vânzator
Toate anunturileAnunturi similare
























































































































































































































































































































































































































































































































































