Ioana Popa
pe site din 13 Mar
activ: 10 Feb 2026 21:14






940.000 eur
Companie
Descriere anunt
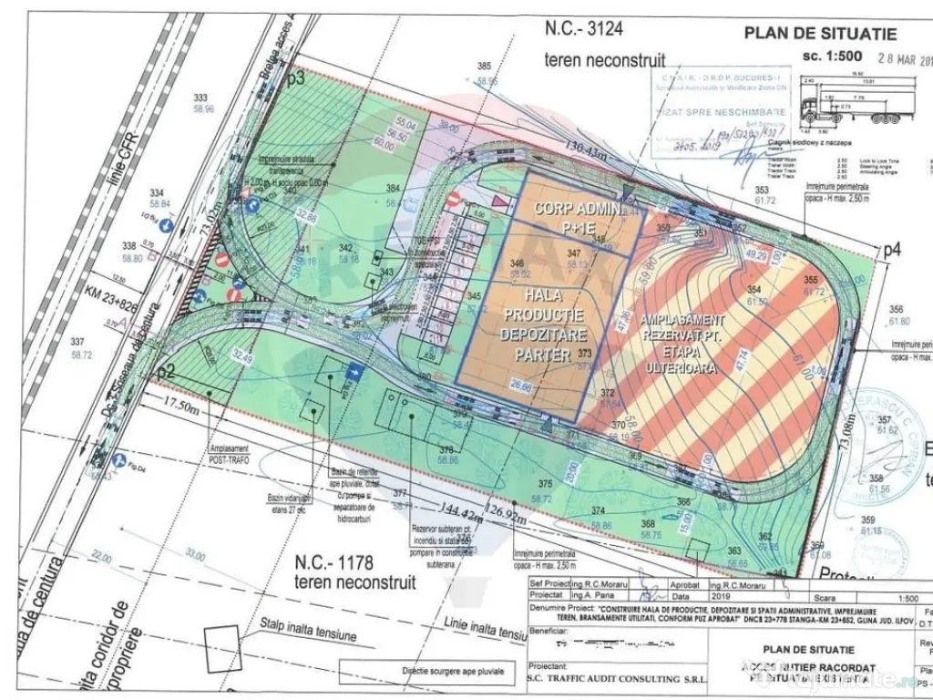
Oportunitate de investitie intr-un teren cu destinatie industriala/comerciala cu o locatie avantajoasa , pe Sos. Centura , zona Glina , in imediata apropiere a nodului cu Autostrada Soarelui A 2
Terenul are o deschidere generoasa la Sos. Centura de 73 ml si dispune de PUZ aprobat
POT max : 60% CUT max- 2
In zona este in desfasurare proiectul de largire al DNCB cu 4 benzi de circulatie .
Acces imediat catre Bucuresti pe A2 spre zona Pallady precum si catre Splaiul Unirii pe Sos. Centura
Zona este in plina dezvoltare in special pentru segmentul industrial /comercia /logistica , in apropiere gasim proiecte finalizate pentru companii de top : Fun Curier , Logicor Pallady , Arabesque , Arow International , proiectele din zona Drumul Intre Tarlale si Catelu
Specificații
Extravilan / IntravilanIntravilan
UtilitățiDa
ID: 16670995
Contactează vânzătorul
Companie
Ioana Popa
pe site din 13 Maractiv:
Nu există recenzii
Mai multe anunțuri ale utilizatorului
Glina, Bucuresti-Ilfov
Despre companie
Loading ad...
Contactează vânzătorul
Companie
Ioana Popa
pe site din 13 Maractiv:
Nu există recenzii
Loading ad...
Vezi mai multe anunturi ale acestui vânzator
Toate anunturileAnunturi similare
































































































































































































































































































